外洋事业部溪河一期安顿房项目举行封顶仪式

365英国上市

外洋事业部溪河一期安顿房项目举行封顶仪式
泉源:外洋事业部?时间:2021-11-12?浏览量:5326

2021年11月10日上午10时58分,,,,外洋事业部濉溪县溪河一期棚户区安顿房(西区)项目封顶仪式顺遂举行,,,,股份公司副总司理、外洋事业部党总支书记、总司理邢应梅、副总司理郭明之、王世标、业主单位相关向导及项目员工代表出席仪式。。。

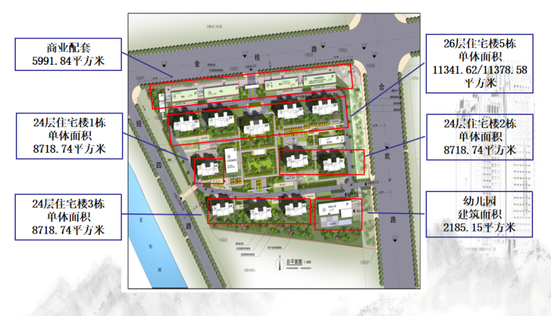
濉溪县溪河一期棚户区安顿房(西区)项目位于安徽省淮北市濉溪县经济开发区,,,,项目占地面积155558.73平米,,,,包括5栋26层住宅楼、6栋24层住宅楼、商业配套5栋、以及幼儿园和地下车库等,,,,建成后将改善外地上千户住民的生涯住房条件。。。自2020年11月开工至今,,,,项目部全心组织施工,,,,紧抓工程进度,,,,严控工程质量,,,,严酷落实集团和外洋事业部关于疫情防控的各项安排,,,,在确保现场作业职员康健清静的情形下,,,,保质保量按期完成结构封顶使命。。。下一步,,,,项目部将继续坚持高标准、严要求,,,,以精益求精的事情态度,,,,打造优质工程回馈社会。。。

外洋事业部溪河一期安顿房项目举行封顶仪式

365英国上市(集团)有限公司-Official website

外洋事业部溪河一期安顿房项目举行封顶仪式

外洋事业部溪河一期安顿房项目举行封顶仪式

外洋事业部溪河一期安顿房项目举行封顶仪式


【网站地图】